Hoppa till huvudinnehåll
Hem Brf Högberget

Kontakta styrelsen om du saknar föreningens gemensamma inloggning.

  • Återställ ditt lösenord

Kontakta styrelsen om du saknar föreningens gemensamma inloggning.

  • Återställ ditt lösenord
  • Hem
  • Bilder
  • Brf Högbergets styrelse
  • Källsortering
  • Stadgar och årsredovisning
  • Våra lägenheter
  1. Hem
  2. Våra lägenheter

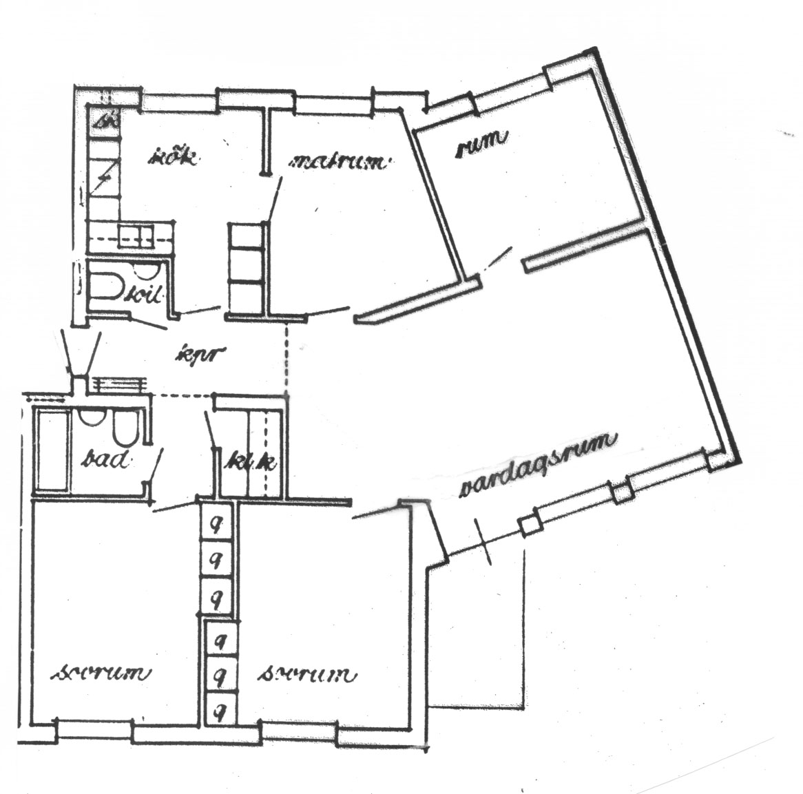
Våra lägenheter

Här kan du se planlösningar på våra lägenheter

Tre rum och kök, 16 st, boyta 73,3 kvm  

Tre rum och kök, 4 st, boyta 72 kvm                 

Två rum och kök med uthyrningsdel, 28 st, boyta 80,5 kvm   

Fem rum och kök, 8 st, boyta 109 kvm

Till varje lägenhet hör ett förråd och en matkällare (båda i källaren)

Mer om huset

Parkering
Föreningen har 19 p-platser och 15 garage. Alla p-platser utom två har eluttag för motor- och kupévärmare. Det är normalt kö till både parkering och garage. Väntetiden varierar. För garage kan väntetiden vara flera år.

Tvättstugor, tork och mangling
Vi har två fräscha tvättstugor och torkrum. Dessutom har vi ett mangelrum med en elmangel och en riktig stenmangel från 1959!

Samlingslokal
I källaren under 8 C finns föreningens fina samlingslokal. I den äger medlemsmöten och andra föreningsaktiviteter rum. Det finns även möjlighet för medlemmar att boka lokalen för eget bruk.

Bastu och dusch
I anslutning till samlingslokalen finns en dusch/bastu. De som vill använda detta betalar en årlig avgift. Utrymmet används även av medlemmars hyresgäster mot årlig avgift.

Snickeri
Snickarboden, med ingång från valvet, kan användas till mindre snickeriarbeten och viss hobbyverksamhet. Där finns en hel del utrustning och verktyg. Medlemmar som vill använda snickeriet betalar en avgift för det.

Elavfall
Sortering av elavfall i form av lysrör, glödlampor, mindre elektriska apparater, sladdar och småelektronik sker i källaren 6 C.

Radonmätning har visat ett årsmedelvärde på mindre än 30 Bequerel per kubikmeter. 

Energideklaration är gjord 2018. Huset använder 116 kWh/m2 och år. Intyg finns i mappen stadgar och årsredovisning.

Obligatorisk ventilationskontroll (OVK) godkänd 2024-03-25. Intyg finns i mappen stadgar och årsredovisning.

Läs mer

Nytt från Bostadsrätterna

Här ser du de tre senaste artiklarna från bostadsratterna.se

Fågeln på dörren stoppade klottret
Cykelrumsdörren klottrades ner minst en gång i veckan och saneringarna blev kostsamma. Bostadsrättsföreningen Göteborgshus nr 52 fick då idén att anlita en konstnär. Initiativet stoppade inte bara...
Så kan du hjälpa till att göra leken säker
En skruv som har lossnat i gungställningen, ett slitet fallunderlag eller en tillfälligt utställd studsmatta. Genom att vara uppmärksam och säga till i tid kan du bidra till att barn och besökare...
Moms på p-platser skjuts fram till 1 april 2027
Hösten 2025 ändrade Skatteverket sin syn när det gäller moms på parkeringsplatser. Uthyrning av parkeringsplatser till hyresgäster eller bostadsrättshavare skulle därmed från 1 oktober i år bli...

Gå till Bostadsrätterna

Brf Högberget, Stigbergsv 6-8, 752 42 Uppsala, styrelsen@brfhogberget.se

Bostadsrätterna logo

Webbplatsen är en förmånstjänst från Bostadsrätterna.
Föreningen ansvarar för allt innehåll på denna webbplats.